LOT 9A, TOM CURRY’S POINT
Basics
- Date added: Added 2 months ago
- Category: Single Family Home
- Status: Active
- Bedrooms: 2
- Bathrooms: 2
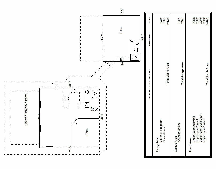
- Area: 1032 sq ft
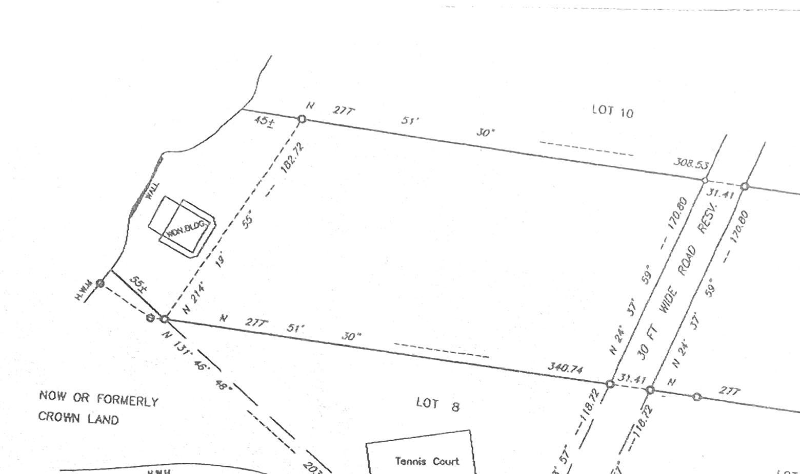
- Lot size: 61839 sq ft
- Year built: 2005
- Currency: USD
- Island: Abaco
- Lot: 9
- Sale or Rent: For Sale Only
- Date Listed: 2026-02-12T00:00:00
- MLS ID: 65976
Description
-
Description:
With mesmerizing views of The Bight of Old Robinson, this elevated, cozy 2-bed, 2-bath, pod-style waterfront home in the friendly community of Little Harbour is on the market for the first time ever. Built in 2005 and then expanded in 2015, the estate blends comfort, functionality, and self-sufficiency in a spectacular island setting. With around 160 feet of shoreline, there is a small boat ramp and small boat basin right at the back door, perfect for outdoor adventures of all kinds. A relaxing paddle or an exciting fly-fishing hunt are some of the probable adventures to enjoy daily. The property looks out over the East Abaco Creeks National Park - a haven for birdwatching, marine life, and peaceful paddling adventures. The main part of the home has a bedroom and a full bathroom with a generous screened porch overlooking the sea. The guest bdrm pod has a full bathroom, a built-in kitchenette, and a wet bar. Offering 1,032 SF of air-conditioned living space over a 700 SF garage and workshop, including furniture and appliances.
Show all description
Amenities & Features
- Sewer: Septic - Yes
- Style: Bahamian Style
- Air conditioning (Condo): Split
- Water: Other
- Outdoor Area (Condo): Porch
- Amenities:
Building Details
- Foundation: Yes
- Construction: Frame
- Area: Little Harbour
- Exterior material: Hardi Plank
- Roof: Asphalt Shingle
- Parking: Garage - Single
Miscellaneous
- Legal Description: All that piece parcel or lot of land comprising the western portion of Lot 9 on Tom Curry's Point located in Little Harbour, Abaco, Bahamas
- Site Influences: Family Oriented,View - Ocean,Quiet Area,Waterfront - Ocean,Pets Allowed
- Monthly Assessment: 0
Location
Ask an Agent About This Home
Disclaimer
The data relating to real estate for sale/lease on this website comes in part from a cooperative data exchange program of the Bahamas Multiple Listing Service (MLS) in which these Brokers participate Bahamas Real Estate Association (BREA). The properties displayed may not be all of the properties in the Bahamas MLS database, or all of the properties listed with Brokers participating in the cooperative data exchange program. Properties listed by Brokers other than this Broker/Agent are marked with the IDX Symbol, indicating an agreement to exchange property information. Detailed information about such properties are noted as Courtesy of: The Bahamas MLS. Information provided is thought to be reliable but is not guaranteed to be accurate. You are advised to verify facts that are important to you. No warranties, expressed or implied, are provided for the data herein, or for their use or interpretation by the user. This information is protected from unlawful duplication by copyright.

